5901 50 Avenue Innisfail, Alberta T4G 1R7

Acreage

$3,856,000

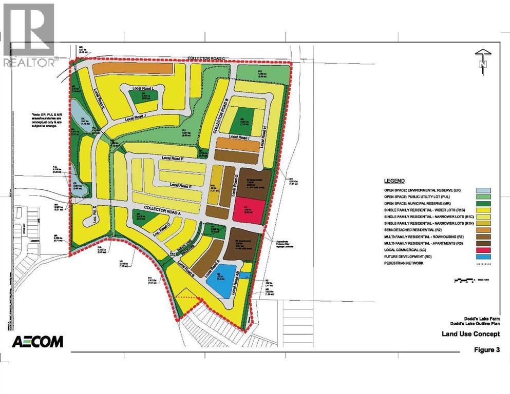
ATTENTION DEVELOPERS & INVESTORS!! 136 Acres of PRIME Residential Mixed Development land with 1785 feet of Dodd's Lake Shoreline in the Heart of Innisfail Alberta. This unique property is an Excellent investment and Development opportunity. An Extensive study with outline plan is in place with the current local ASP & Geo Technical Report. There are approximately 310 single detached dwellings, 65 semi-detached dwellings, 104 row housing units and 257 apartment units with a small neighborhood commercial parcel included in the plan. The properties wetlands and creek only add to the charm that this neighborhood will be developed into with the town fully supportive to any new developers plans for build out. Don't miss this rare opportunity! "Visit REALTOR® website for additional information" (id:57810)

Property Details

MLS® Number A2291188
Property Type Vacant Land
Community Name Dodds Lake
Amenities Near By Golf Course, Park, Water Nearby
Community Features Golf Course Development, Lake Privileges

Building

Age Age Is Unknown

Land

Acreage Yes
Fence Type Fence
Land Amenities Golf Course, Park, Water Nearby
Size Irregular 135.88
Size Total 135.88 Ac|80 - 160 Acres
Size Total Text 135.88 Ac|80 - 160 Acres
Zoning Description Rd

https://www.realtor.ca/real-estate/29439817/5901-50-avenue-innisfail-dodds-lake

Contact Us

Contact us for more information

Generating Captcha

Your Favourites

 

No Favourites Found