5645 Lakeside Way Innisfail, Alberta T4G 0H4

Acreage

$1,000,000

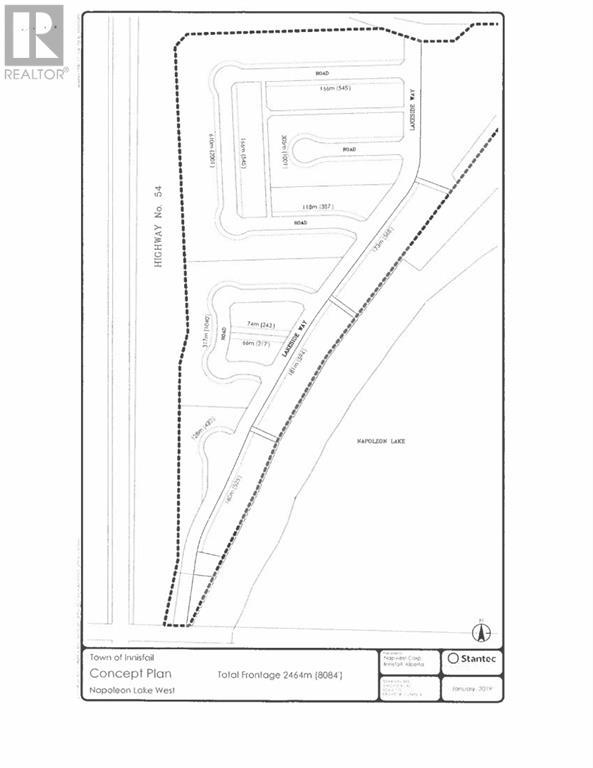
**Endless Opportunity Awaits in Innisfail** Location truly makes all the difference, and this 6.57-acre parcel of prime land has it all! Situated directly across from the prestigious Innisfail Golf Course and conveniently located on Hwy 42 within town limits, this property is a golden opportunity to make your mark in one of Alberta's most charming and promising communities. Currently zoned R-3, the possibilities are vast. With town approval, you could develop single-family homes, spacious acreage lots, or even consider other creative projects. This land also boasts a unique feature—a Napoleon Lake frontage area, adding serene natural beauty and incredible potential to your vision. **Welcome to Innisfail** Innisfail offers an unbeatable blend of small-town charm, natural beauty, and modern convenience. From the renowned golf course to the vibrant local culture, parks, and recreational opportunities, Innisfail is the perfect backdrop for a development that enhances the community. Strategically located near major highways, the town is poised for growth and provides the perfect environment for new ventures. **Prime Land, Infinite Possibilities** Whether you're a developer, builder, or dreamer, this exceptional property offers a rare opportunity to create something truly special. With its incredible location and unique features, it’s more than just land—it’s the foundation of your next great project. (id:57810)

Property Details

MLS® Number A2212432
Property Type Vacant Land
Features Treed
Plan 9123400
View Type View

Building

Age Age Is Unknown

Land

Acreage Yes
Fence Type Not Fenced
Size Irregular 6.57
Size Total 6.57 Ac|5 - 9.99 Acres
Size Total Text 6.57 Ac|5 - 9.99 Acres
Zoning Description R-3

https://www.realtor.ca/real-estate/28192630/5645-lakeside-way-innisfail

Contact Us

Contact us for more information

Generating Captcha

Your Favourites

 

No Favourites Found