4 Bedroom
4 Bathroom
1,313 sqft
None
Forced Air
Landscaped
$468,825Maintenance, Common Area Maintenance, Insurance, Parking, Property Management, Reserve Fund Contributions, Waste Removal
$286.08 Monthly
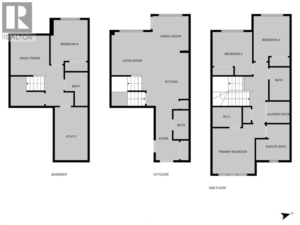
OPEN HOUSE on Saturday AND Sunday from 12-5pm. Please go to the Show Home located at 96 Creekside Drive SW for access.Welcome to this brand-new fully finished townhome by StreetSide Developments in the thoughtfully designed community of Sirocco in south Calgary. Surrounded by parks, pathways, and a scenic central pond, Sirocco offers a peaceful neighborhood atmosphere where outdoor living and quiet moments are part of everyday life. With nearby amenities, shopping, and convenient access to major routes, residents enjoy the perfect balance of natural surroundings and city connectivity. Proximity to Sirocco Golf Club further enhances the open, green feel of this growing community.This fully finished two-storey townhome offers exceptional flexibility with four bedrooms and four bathrooms across three levels of developed living space. The main floor features a bright open-concept layout connecting the kitchen, dining area, and living room, creating a comfortable space for both everyday living and entertaining. The kitchen is beautifully finished with modern slab-style cabinetry featuring 42” upper cabinets, a full bank of drawers, soft-close doors, polished white quartz countertops, tile backsplash, stainless steel Whirlpool appliances, and a polished chrome Moen high-arc faucet with pull-down sprayer. Luxury vinyl plank flooring runs throughout the main living areas, bathrooms, and laundry room, while contemporary lighting selected by professional designers completes the modern interior.Upstairs, you’ll find three bedrooms including a spacious primary suite with a private full ensuite. An additional full bathroom and the convenience of upper-floor laundry enhance the functionality of the upper level.The fully finished lower level expands the home’s versatility with a fourth bedroom, full bathroom, and family room — ideal for guests, teenagers, a home office, or additional living space.Additional features include a single attached garage with opener, driveway and an additional titled parking stall,, high-efficiency gas furnace, digital thermostat, 50-gallon electric hot water tank, energy-efficient dual-pane windows with low-E coating, sound attenuation system for increased privacy between units, and a natural gas BBQ line on the patio or balcony. Durable exterior cladding with vinyl siding and fibre cement panels, along with lifetime limited warranty roof shingles, ensures long-term performance and curb appeal.Offering modern construction, thoughtful design, and a location centered around green space and lifestyle, this home represents an outstanding opportunity to own a brand-new property in one of Calgary’s emerging south communities. (id:57810)
Property Details
|
MLS® Number
|
A2300544 |
|
Property Type
|
Single Family |
|
Neigbourhood
|
Sirocco |
|
Community Name
|
Pine Creek |
|
Amenities Near By
|
Park, Playground, Schools, Shopping |
|
Community Features
|
Pets Allowed With Restrictions |
|
Features
|
Other, No Animal Home, No Smoking Home |
|
Parking Space Total
|
3 |
|
Plan
|
2510125 |
|
Structure
|
Deck |
Building
|
Bathroom Total
|
4 |
|
Bedrooms Above Ground
|
3 |
|
Bedrooms Below Ground
|
1 |
|
Bedrooms Total
|
4 |
|
Amenities
|
Other |
|
Appliances
|
Washer, Refrigerator, Dishwasher, Stove, Dryer, Microwave Range Hood Combo, Garage Door Opener |
|
Basement Development
|
Finished |
|
Basement Type
|
Full (finished) |
|
Constructed Date
|
2026 |
|
Construction Material
|
Wood Frame |
|
Construction Style Attachment
|
Attached |
|
Cooling Type
|
None |
|
Exterior Finish
|
Vinyl Siding |
|
Flooring Type
|
Carpeted, Vinyl Plank |
|
Foundation Type
|
Poured Concrete |
|
Half Bath Total
|
1 |
|
Heating Fuel
|
Natural Gas |
|
Heating Type
|
Forced Air |
|
Stories Total
|
2 |
|
Size Interior
|
1,313 Sqft |
|
Total Finished Area
|
1312.66 Sqft |
|
Type
|
Row / Townhouse |
Parking
Land
|
Acreage
|
No |
|
Fence Type
|
Not Fenced |
|
Land Amenities
|
Park, Playground, Schools, Shopping |
|
Landscape Features
|
Landscaped |
|
Size Depth
|
22.45 M |
|
Size Frontage
|
6.1 M |
|
Size Irregular
|
137.19 |
|
Size Total
|
137.19 M2|0-4,050 Sqft |
|
Size Total Text
|
137.19 M2|0-4,050 Sqft |
|
Zoning Description
|
M-cg |
Rooms
| Level |
Type |
Length |
Width |
Dimensions |
|
Lower Level |
Recreational, Games Room |
|
|
9.75 Ft x 9.58 Ft |
|
Lower Level |
Bedroom |
|
|
10.17 Ft x 8.50 Ft |
|
Lower Level |
3pc Bathroom |
|
|
8.33 Ft x 5.33 Ft |
|
Main Level |
Living Room |
|
|
11.08 Ft x 10.50 Ft |
|
Main Level |
Kitchen |
|
|
14.00 Ft x 8.00 Ft |
|
Main Level |
Dining Room |
|
|
9.08 Ft x 9.00 Ft |
|
Main Level |
Foyer |
|
|
5.67 Ft x 4.83 Ft |
|
Main Level |
2pc Bathroom |
|
|
6.83 Ft x 3.33 Ft |
|
Upper Level |
Primary Bedroom |
|
|
11.33 Ft x 10.67 Ft |
|
Upper Level |
Other |
|
|
7.33 Ft x 4.92 Ft |
|
Upper Level |
4pc Bathroom |
|
|
8.67 Ft x 8.08 Ft |
|
Upper Level |
Bedroom |
|
|
9.67 Ft x 8.50 Ft |
|
Upper Level |
Bedroom |
|
|
9.92 Ft x 9.08 Ft |
|
Upper Level |
Laundry Room |
|
|
5.50 Ft x 5.00 Ft |
|
Upper Level |
4pc Bathroom |
|
|
8.42 Ft x 4.92 Ft |
https://www.realtor.ca/real-estate/29589514/50-creekside-way-sw-calgary-pine-creek