3 Bedroom
3 Bathroom
2,505 ft2
Fireplace
None
Forced Air
$749,900
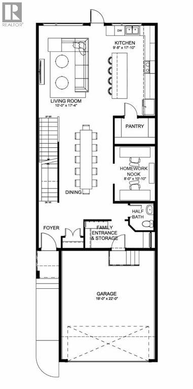
***OPEN HOUSE Saturday from 1pm to 3pm, Visit the Showhome for Access*** Welcome to this Beautifully Designed Home created for modern family living. The spacious dining area comfortably seats 12 OR MORE PEOPLE, providing the perfect setting for both intimate dinners and large family gatherings. The thoughtfully designed kitchen invites shared meal preparation, turning everyday cooking into an enjoyable experience at the heart of the home.A versatile MAIN-FLOOR DEN offers flexibility and can be easily transformed into a dedicated homework area or a welcoming guest room. Upstairs, two generously sized bedrooms provide quiet retreats ideal for study or relaxation. The expansive PRIMARY BEDROOM serves as a private sanctuary, offering a peaceful escape where self-care takes center stage.This home is filled with impressive details, including sleek HORIZONTAL ALUMINUM RAILINGS WITH CLEAR GLASS, an elegant ELECTRIC FIREPLACE that anchors the living space, SOARING 9FT FOUNDATIONS, and a desirable location BACKING ONTO THE ENVIRONMENTAL RESERVE.Every Cantiro Home is equipped with modern comfort and efficiency in mind, featuring a TANKLESS WATER HEATER, TRIPLE PANE WINDOWS, and SMART HOME FEATURES such as a SMART THERMOSTAT, DOORBELL CAMERA, KEYLESS DOOR LOCK, and WIFI-CONNECTED GARAGE DOOR OPENER.The West Hawk community is thoughtfully designed around 27 ACRES OF SLOPING ENVIRONMENTAL RESERVE, preserving native wildlife habitats while offering residents scenic viewpoints, rest areas, and a network of WALKING TRAILS AND RAVINE CROSSINGS. These natural features are integrated into Bike Cochrane’s exclusive bike network, providing residents with seamless access to the outdoors.Future community enhancements in Phases 2 and 3 include an OFF-LEASH DOG PARK and a PLAYGROUND, both expected to be completed by early fall 2025. Over 50% of the homes in West Hawk are strategically positioned to back onto key amenities such as the Environmental Reserve Ridge, the future dog par k in the northeastern corner, and the planned Tot Lot along Heritage Boulevard. A FUTURE K–9 SCHOOL SITE will further enhance the family-friendly atmosphere and contribute to the exceptional quality of life for residents. Don't miss your chance to view this beauty today! (id:57810)
Property Details
|
MLS® Number
|
A2262943 |
|
Property Type
|
Single Family |
|
Amenities Near By
|
Park, Playground, Schools, Shopping |
|
Features
|
Closet Organizers, No Animal Home, No Smoking Home |
|
Parking Space Total
|
4 |
|
Plan
|
2411850 |
|
Structure
|
Deck |
Building
|
Bathroom Total
|
3 |
|
Bedrooms Above Ground
|
3 |
|
Bedrooms Total
|
3 |
|
Appliances
|
Refrigerator, Dishwasher, Stove, Microwave, Hood Fan |
|
Basement Development
|
Unfinished |
|
Basement Type
|
Full (unfinished) |
|
Constructed Date
|
2025 |
|
Construction Style Attachment
|
Detached |
|
Cooling Type
|
None |
|
Exterior Finish
|
Vinyl Siding |
|
Fireplace Present
|
Yes |
|
Fireplace Total
|
1 |
|
Flooring Type
|
Carpeted, Tile, Vinyl Plank |
|
Foundation Type
|
Poured Concrete |
|
Half Bath Total
|
1 |
|
Heating Type
|
Forced Air |
|
Stories Total
|
2 |
|
Size Interior
|
2,505 Ft2 |
|
Total Finished Area
|
2505 Sqft |
|
Type
|
House |
Parking
Land
|
Acreage
|
No |
|
Fence Type
|
Not Fenced |
|
Land Amenities
|
Park, Playground, Schools, Shopping |
|
Size Depth
|
35 M |
|
Size Frontage
|
9.82 M |
|
Size Irregular
|
343.65 |
|
Size Total
|
343.65 M2|0-4,050 Sqft |
|
Size Total Text
|
343.65 M2|0-4,050 Sqft |
|
Zoning Description
|
Tbd |
Rooms
| Level |
Type |
Length |
Width |
Dimensions |
|
Main Level |
Other |
|
|
8.83 Ft x 9.25 Ft |
|
Main Level |
Dining Room |
|
|
10.67 Ft x 17.00 Ft |
|
Main Level |
Living Room |
|
|
13.00 Ft x 18.00 Ft |
|
Main Level |
Kitchen |
|
|
9.50 Ft x 17.67 Ft |
|
Main Level |
Office |
|
|
8.00 Ft x 10.83 Ft |
|
Main Level |
Other |
|
|
6.00 Ft x 8.50 Ft |
|
Main Level |
2pc Bathroom |
|
|
5.08 Ft x 5.58 Ft |
|
Upper Level |
Primary Bedroom |
|
|
11.50 Ft x 18.00 Ft |
|
Upper Level |
Bedroom |
|
|
11.00 Ft x 13.67 Ft |
|
Upper Level |
Bedroom |
|
|
11.67 Ft x 12.00 Ft |
|
Upper Level |
Laundry Room |
|
|
6.50 Ft x 7.25 Ft |
|
Upper Level |
Family Room |
|
|
14.83 Ft x 18.67 Ft |
|
Upper Level |
4pc Bathroom |
|
|
4.92 Ft x 9.33 Ft |
|
Upper Level |
5pc Bathroom |
|
|
8.00 Ft x 11.50 Ft |
https://www.realtor.ca/real-estate/29096492/47-heritage-heath-cochrane