105, 251 Spruce Street Rural Red Deer County, Alberta T4E 1B4

3,332 ft2
Forced Air, Radiant Heat

$564,900

Maintenance,

$482 Monthly

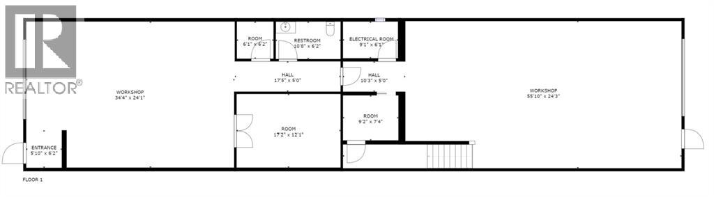
Ideal south side location in Piper Creek Industrial park, just south of the Westerner grounds/Centrium. This building was constructed in 2015 and shows near new, with a 2751 sq. ft. footprint (Condo plan measurement) and 3332 total developed space (Interior measurements) including mezzanine with exterior fenced storage compound. This incredible space has both a front drive 14 ft. overhead door and a rear drive 14 ft. overhead door with two separate bays and office space in the centre. The possibilities are endless, as the front could be used as a show room or additional shop space, or could be sub-let to a tenant. Also ideal deal for the hobbyist or business owner that desires some extra space for a man cave. Both the front and back shop/showroom spaces have overhead radiant heat, front bay is 24'x 34', rear bay is 24'x55'. The office mezzanine has force air. The upper mezzanine consists of two offices, a bathroom and a kitchen room. The lower central space below the mezzanine has another large room ideal for show room/reception or office space, plus two additional rooms that could be used for storage or small office and another bathroom. Front bay flooring has been left bare concrete as the new owner may decide they want carpet for a showroom, epoxy, paint, or leave as is, The front parking area is paved as well as the rear access and parking. Current lease expires March 15, 2026, tenant may wish to renew if desired by purchaser. Condo fee is $482 per month. (id:57810)

Business

Business Type Automobile, Construction, Industrial, Industrial, Manufacturing, Other, Other, Recreation, Retail and Wholesale
Business Sub Type Auto service/repair, Construction, Warehouse, Industrial, Manufacturing, Professional office(s), Other, Recreation, Wholesale

Property Details

MLS® Number A2265646
Property Type Other
Neigbourhood Gasoline Alley
Community Name Piper Creek Business Park
Plan 2220317
Total Buildings 1

Building

Constructed Date 2015
Construction Material Wood Frame
Foundation Type Poured Concrete
Heating Fuel Natural Gas
Heating Type Forced Air, Radiant Heat
Size Exterior 3332 Sqft
Size Interior 3,332 Ft2
Total Finished Area 3332 Sqft
Type Commercial Mix
Utility Water Municipal Water

Land

Acreage No
Sewer Municipal Sewage System
Size Irregular 0.00x0.00
Size Total Text 0.00x0.00|unknown
Zoning Description Bsi

Utilities

Electricity Connected
Natural Gas Connected
Sewer Connected
Water Connected

https://www.realtor.ca/real-estate/29012093/105-251-spruce-street-rural-red-deer-county-piper-creek-business-park

Contact Us

Contact us for more information

Generating Captcha

Your Favourites

 

No Favourites Found